Prototype Designs
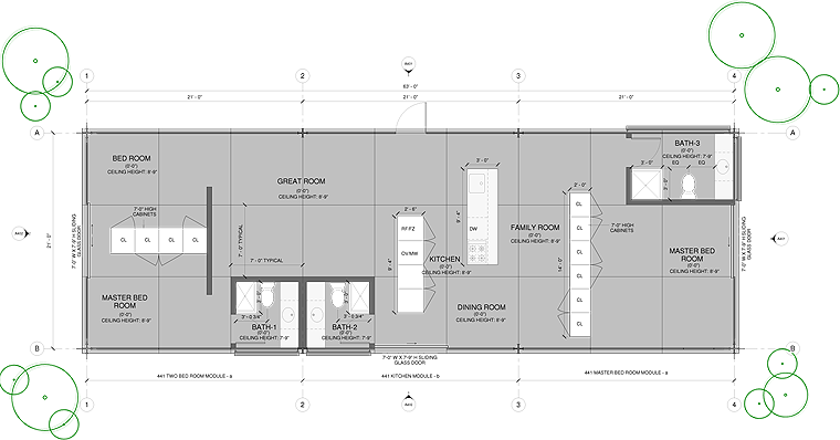
DCHGlobal 1323
1323 sq.ft. single family home
- Program: 3 BR, 3 Bath, Dining, Family, Kitchen, and Great Room
- Construction time: 20 Working days (Single Crews)
- Green rating: Determined by home owner
The DCHGlobal 1323 is designed as a three bay structure. The interior layout is an open floor plan with functional areas separated with standing credenzas and floating panels. It can be customized to accommodate specific lot characteristics and can be uniquely modified to fit any location, climate, or terrain.

